5 Bedroom, 2.5 Bath

17640 NE Glisan Street, Gresham

Financial Qualification

Additional Financial Information

  • Homes will be resale restricted to provide for lasting affordability
  • Must be willing to partner and complete sweat equity hours
  • Must meet partner lender requirements and secure financing to meet minimum mortgage amounts based on income. Your monthly payment will be based on your income and household size.hold size.

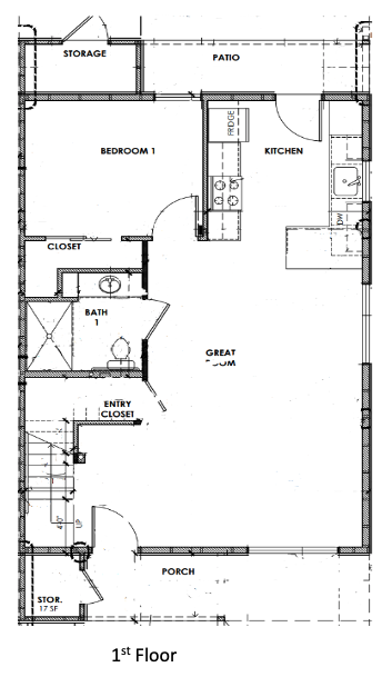
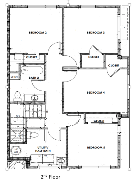
Property Features

  • Energy Efficient appliances including a range, refrigerator, dishwasher, washer, dryer
  • Solar Ready

Property Information

  • Style: duplex/townhome
  • Bedrooms: 5
  • Baths: Two full baths. 1 half bath. 
  • Square Footage: 1,642
  • Parking: 1 assigned parking space
  • Heating: Forced air

Schools

  • Reynolds School District
  • Hartley Elementary School
  • Reynolds Middle School
  • Reynolds High School