Financial Qualification
- Maximum household size: 8
- Sales price, minimum and maximum income information coming soon
Additional Financial Information
- Homes will be resale restricted to provide for lasting affordability
- Must be willing to partner and complete sweat equity hours
- Must meet partner lender requirements and secure financing to meet minimum mortgage amounts based on income. Your monthly payment will be based on your income and household size.
Property Features
- Energy Efficient appliances including a range, refrigerator, dishwasher, washer, dryer
- Solar Ready
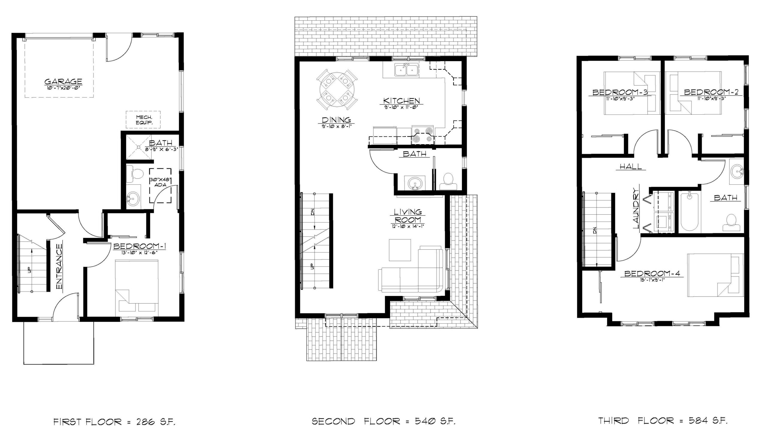
Property Information
- Style: tri-plex/townhome
- Bedrooms: Four
- Baths: Two full baths, 1 half bath
- Square Footage: 1,411, plus 345 in garage
- Parking: single car garage and 1 car parking pad
- Heating: Forced air
- Accessible: ADA Ready
Schools
- School District: Hillsboro School District
- Elementary: Imlay Elementary School
- Middle: RA Brown Middle School
- High: Century High School
